Strešna kritina
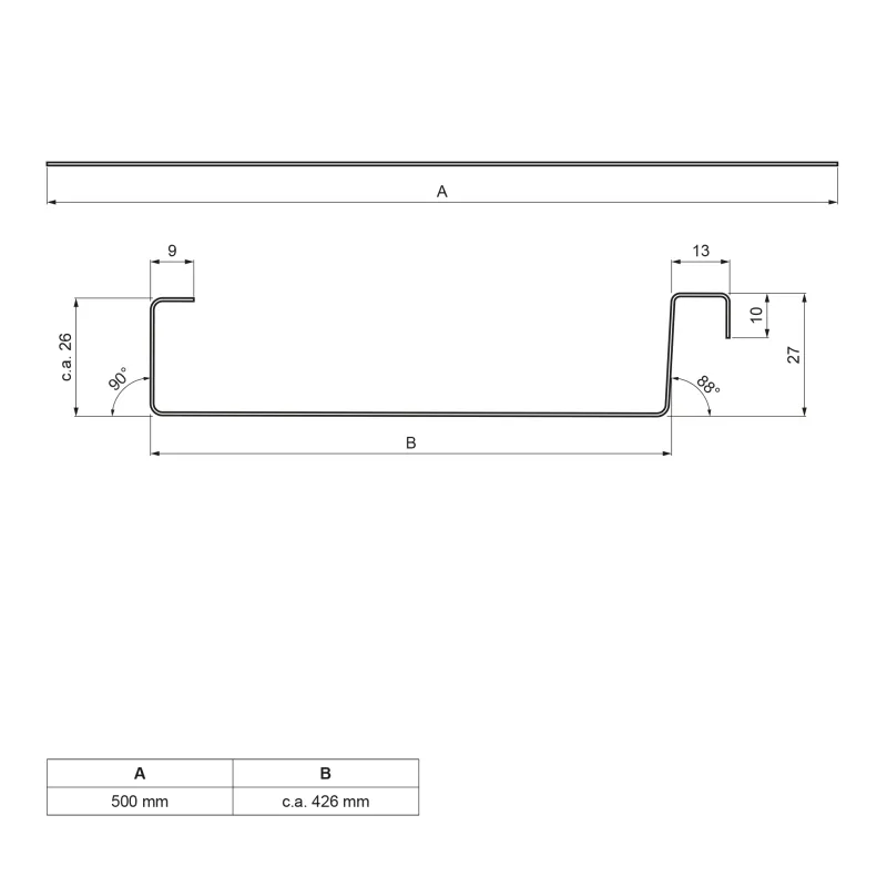
FALZ profil dvojni pokončni zgib
| Material | Aluminij barvni W.15 |
| Barva | Anodic W.15 |
| RAL | 7013 |
Opis izdelka
KJG FALZ profil KJG je sodobna rešitev za strešne kritine elegantnega videza in z dolgo življenjsko dobo. Gre za pločevinski trak s sistemom dvojnega pokončnega zgiba, ki se že profiliran dobavlja neposredno na gradbišče, brez nujnosti dodatnega profiliranja. To pomeni hitrejšo montažo, natančno spajanje in maksimalen prihranek časa na kraju samem.
Zaradi natančne obdelave in kakovosti materialov je profil KJG FALZ primeren za nove objekte in tudi za rekonstrukcije tako tradicionalnih kot sodobnih arhitekturnih projektov. Idealen je za majhne naklone streh od ± 3°, kos pa je tudi zahtevnim klimatskim pogojem.
Prednosti KJG FALZ profila:
- Dobavlja se že profiliran, pripravljen za montažo.
- Tesen spoj brez vidnih vijakov.
- Odpornost na veter, dež in sneg.
- Elegantna in čista podoba strehe.
- Majhna teža kritine.
- Široka skala barvne izvedbe in površinske obdelave.
- Kritina brez nujnosti vzdrževanja in z dolgo življenjsko dobo.
Kratica barve: ZHM
Koda izdelka: FALZ-DSD
Tabela proizvodov
* Izdelava po naročilu
EN AW-3105 H44
W.15 25μ/PES25μ, Sijaj 30% Polyester
Priporočene potrošniške cene
Drugi sestavni deli

Prodajna mesta
V Evropi smo doma. Imamo predstavništva v 14 državah in še vedno rastemo. Kjerkoli iščete močnega partnerja za svojo streho, obrnite se na nas.
Najdi trgovca
Imate vprašanje o naših produktih ali storitvah?
Novičke
Prijavite se na novičke in redno boste dobivali koristne informacije o produktih KJG.















