Tetőburkolat
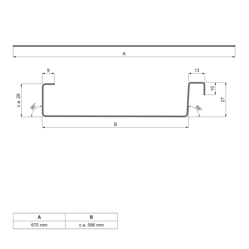
FALZ profil kettős állókorcos fedés
| Anyag | Acél |
| Felületkezelés | U. S. Steel |
Termékleírás
A KJG cég KJG FALZ profilja egy modern tetőfedő megoldás, elegáns megjelenéssel és hosszú élettartammal. Tulajdonképpen egy kész fémszalag kettős állókorcos rendszerrel, amelyet már profilozva szállítanak közvetlenül az építkezésre anélkül, hogy további profilozást igényelne. Ez gyorsabb szerelést, pontos illeszkedést és maximális időmegtakarítást jelent a kivitelezés helyszínén.
A precíz feldolgozásnak és a minőségi anyagoknak köszönhetően a KJG FALZ profil új építményekhez és tetőfelújításokhoz - a hagyományos építészeti projektektől a modern építészeti projektekig - egyaránt alkalmas. Ideális ± 3°-os hajlásszögű tetőkhöz, és a nehéz éghajlati viszonyokkal is megbirkózik.
A KJG FALZ profil előnyei:
- Már profilozva, szerelésre készen szállítjuk.
- Szoros illesztés, látható csavarok nélkül.
- Szél-, eső- és hóállóság.
- Elegáns és tiszta megjelenésű tető.
- Alacsony súlyú tetőburkolat.
- Színkialakítások és felületkezelések széles skálája.
- Karbantartásmentes és hosszú élettartamú tetőburkolat.
Anyagok rövidítése: USS
Termékkódok: FALZ-DSD
Terméktáblázat
* gyártás megrendelésre
DX51D+Z 200 EN10204
Árfolyamon átszámítva: 1 € = 393,40 Ft
Ajánlott fogyasztói árak
További alkatrészek

Elárusítóhelyek
Európában otthon vagyunk. Képviseletünk van 14 országban és még mindig növekszünk. Bárhol is erős partnert keres a tetőjéhez, lépjen velünk kapcsolatba.
Keressen viszonteladót
Szeretne érdeklődni termékeinkről vagy szolgáltatásainkról?
Newsletter
Iratkozzon fel hírlevelünkre, és kapjon rendszeresen hasznos információkat a KJG termékekről.















