Кровельное покрытие
Оцинковка
Лакированная оцинковка
Лакированная оцинковка MATT
Лакированная оцинковка STUCCO
Лакированная оцинковка MATT STUCCO
Лакированная оцинковка MARCEGAGLIA
Лакированная оцинковка MATT MARCEGAGLIA
Алюминий
Лакированный алюминий
Лакированный алюминий W.15
Лакированный алюминий STUCCO
Лакированный алюминий W.15 STUCCO
Титан-цинк
Титано-цинковая Патина
Meдь
Нержавеющая сталь
FALZ профиль двойная вертикальная канавка
| Материал | Лакированная оцинковка |
| Цвет | Стальной красный |
| RAL | 3009 |
Описание продукта
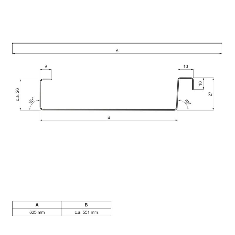
Профиль KJG – KJG FALZ, это современное кровельное решение с элегантным внешним видом и длительным сроком службы. Это готовая металлическая полоса с системой двойной вертикальной канавки, которая поставляется уже профилированной непосредственно на строительную площадку, без необходимости дальнейшего профилирования. Это означает более быструю сборку, точную подгонку и максимальную экономию времени на месте.
Благодаря точной обработке и качественным материалам профиль KJG FALZ подходит для нового строительства и реконструкции кровель, как традиционных, так и современных архитектурных проектов. Он идеально подходит для кровель с уклоном от ± 3° и выдерживает даже сложные климатические условия.
Преимущества профиля KJG FALZ:
- Поставляется уже профилированным, готовым к монтажу.
- Плотное соединение без видимых винтов.
- Устойчивость к ветру, дождю и снегу.
- Элегантный и аккуратный вид кровли.
- Небольшой вес покрытия.
- Широкий выбор цветов и вариантов отделки поверхности.
- Не требующее ухода и долговечное покрытие.
Цветовая аббревиатура: OC
Код продукта: FALZ-DSD
Таблица продуктов
* изготовление на заказ
DX51D EN 10346 Z 225 g/m2 ZM
PE25μ/PE7μ, Блеск 30% Polyester
Рекомендованные розничные цены
Другие компоненты

Точки продаж
В Европе мы как дома. Мы представлены в 14 странах и продолжаем расти. Если вы ищете надежного партнера для своей кровли, свяжитесь с нами.
Найти дилера
Хотите узнать о наших продуктах или услугах?
Информационный бюллетень
Подпишитесь на рассылку и получайте регулярную полезную информацию о продукции KJG.















